- Heat And Glow Fireplace Repair
- Heat And Glo Fireplace Owner's Manual
- Heat & Glo Remote Instructions
- Heat And Glo Fireplace Manual Start
- Heat N Glo Parts Manual

20
!
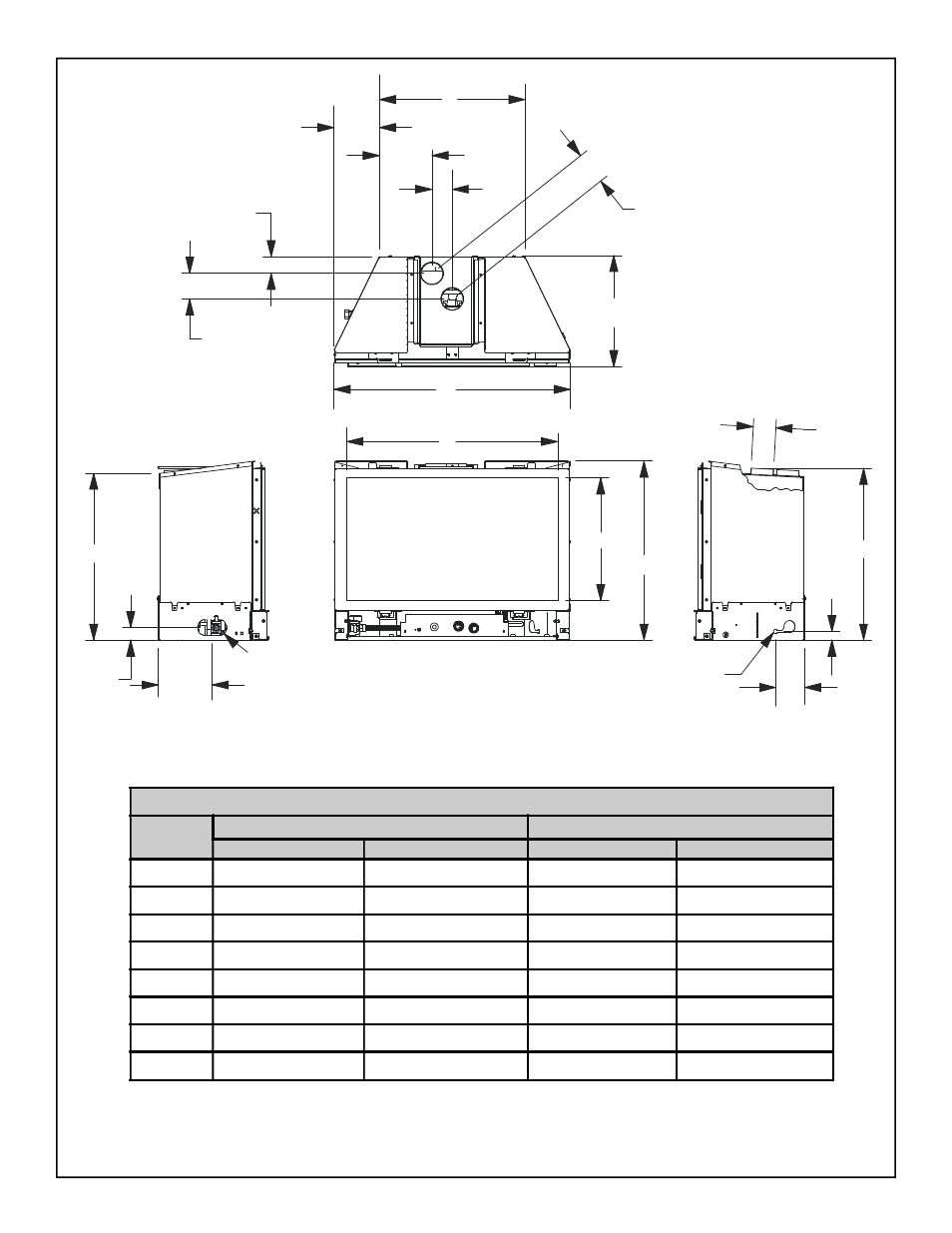
169 Instruction Manuals and User Guides for Heat & Glo Fireplace online. Read online or download owner's manuals and user guides for Heat & Glo Fireplace. The right tools, right at your fingertips Specifying the right hearth product for your built environment has never been easier. Heat & Glo provides industry leading fireplace design and specification tools to support you from schematic planning to construction administration and beyond. Explore our product line and download fireplace CAD drawings, Revit BIM families, CSI Specifications,.
Heat-n-glo fireplace, At-grand, Installers guide. Read online or download PDF. Heat & Glo Fireplace Heat & Glo Fireplace AT-GRAND User Manual Manuals Directory ManualsDir.com. 2 Heat & Glo. 6000CMOD-IFT, 8000CMOD-IFT Owner’s Manual. 2509-981 Rev. E. 1/19 Listing Label Information/Location A. This Congratulations Congratulations on selecting a Heat & Glo gas fireplace, an elegant and clean alternative to wood burning fireplaces. The Heat & Glo gas fireplace. Below you’ll find a comprehensive FAQ section, manuals detailing product features and installation, as well as video tutorials to show you how to clean, reset, and operate your particular fireplace. If you have additional questions that cannot be answered by any of the following resources, please contact your local Heat & Glo dealer. Draw heat from your fireplace to another room in your home, up to 20 feet away. When a heat zone kit is run continuously, it can redirect up to 25% of the heat to another area, also reducing wall temperatures above the fireplace. Two heat zones run continuously will redirect up to 50% of the total heat output.
Optional Accessories
Installation of the electrical junction box is required if using
a blower or remote. To install:
•
Uncoil the junction box cord and feed the end of the
cord through the hole on the right side of the base pan.
•
Turn the junction box at a 45-degree angle and insert it
into the sidewall of the base pan.
•
Turn junction box so it is flush with sidewall and screw
into place with the screw provided in the manual bag.
•
Gently pull the end of the cord until cord is tight. Place
the strain relief on the cord and then place it into hole on
base pan.
•
Plug the cord into a convenient outlet. An electrician
may install an outlet box inside the fireplace. Place the
outlet in the lower, back corner of the fireplace supplied.
Make sure fan doesn’t touch back wall.
Fan Option (FB-IN & FB-Grand ONLY)
On units already installed removal of decorative front, sur-
round and gas insert is required.
• Detach flexible liner from back of unit.
• Remove the four screws on the coverplate (see Figure 11).
• Bend up the tabs on the base pan (see Figure 10).
Heat And Glow Fireplace Repair
• Place the blower in between the bend up tabs.
• Install and wire the blower per instruction shipped with
the fan.
• The ground wire of the fan can clip on the side of the
base pan.
• Reinstall the cover plate back on the unit. Make sure
the fan does not make contact with the back wall.
Figure 9.
Junction box installation
JUNCTION
BOX
SIDEWALL
FEED PLUG
THROUGH HOLE
INSERT STRAIN RELIEF
AROUND CORD IN THIS END
FROM OUTSIDE OF UNIT
SCREW
PROVIDED
Figure 10. Fan Wiring Diagram
NOTE: IF ANY OF THE ORIGINAL WIRE AS SUP-
PLIED WITH THE APPLIANCE MUST BE RE-
PLACED, IT MUST BE REPLACED WITH TYPE
105
0
C RATED WIRE.
WARNING: MUST USE THE CORD SUPPLIED
WITH THE J-BOX.
JUNCTION BOX
VARIABLE SPEED CONTROL
TEMPERATURE
SENSOR SWITCH
WHT
GRN
BLK
BLK
110-120 VAC

BLOWER
BLOWER RECEPTACLE
BLK
BLK
BLK
BLK
WHT
GROUND
WHT
BLK
BLK
BLK
FAN
TEMPERATURE
SENSOR SWITCH
SPEED CONTROL
(RHEOSTAT)
JUNCTION
BOX
GROUND WIRE
(ATTACH TO ANY
METAL SURFACE)
Figure 11.
FAN
COVER
Heat And Glo Fireplace Owner's Manual
PLATE
Heat & Glo Remote Instructions
GROUND
Heat And Glo Fireplace Manual Start
WIRE